EPS / ICF / Polystyrene Block Construction
Render Systems for EPS / ICF / Polystyrene Block Construction
Overview
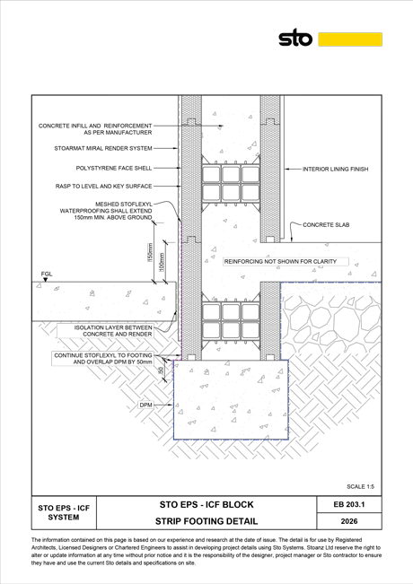
EPS / ICF / Polystyrene block construction is a snap together hollow block, constructed for a reinforced concrete mass masonry core that is pored into the supported EPS block walls. An established method in the New Zealand construction industry, combining the values and properties of diverse materials.
EPS / ICF / Polystyrene block is light, quick and easy in its installation, giving the designer the ability to form straight and curved walls with exceptional insulation and acoustic properties. The StoArmat Render System is fracture, impact resistant and engineered to provide optimal protection and finish with warranty, to compliment, protect and enhance this building element.
Brochure
StoArmat Miral Render System
A BRANZ appraised high performance system to provide exceptional crack resistance and weather protection. Application includes a basecoat with LevelLite render to straighten any irregularities, Followed by StoArmat render and glass fibre mesh , providing engineered reinforcement to reliably dissipate tensile, seismic and shear stress. Finished with perfectly interlocking components: Stolit fibre-reinforced coloured finishing render plus StoColor or StoClear; creating a 4mm weather tight reinforcement system for reliability and protection that surpasses the facade durability requirements.
Application is carried out by a Sto Registered Contractor (Licensed Building Practitioner) and comes with the added protection of a StoArmat 15 or 20 Year Warranty with StoService Assurance, ensuring the materials used and application, meets building code standards, including a service plan for long-term performance.
StoArmat Miral Render System
Click on each of the layers below to view the components of the system.
01
Basecoat: StoLevell Novo / LevelLite Mineral Render
Lightweight EPS bead mineral render (plaster) with good build properties, water retention agents and machine application properties.

02
Reinforcement Render: StoArmat Render
An organic, weather resistant, cement-free and breathable, high-impact render, with a crack resistance six times higher than that of standard cement-based plasters.

03
Plus: Sto Glass Fibre Mesh 4/7mm
Easy to install, meets the highest requirements for crack, stress and alkalinity resistance.

04
Finishing Render: Stolit Renders
Organically bound, highly weather resistant, strong, hard-wearing, impact-resistant, pre-coloured finishing renders. (No cement)
Stolit K Range
Stolit MP & MP Natural
Stolit Milano

05
Coating:
StoColor coating based on IQ Technology for functional facades or a StoClear sealer.
StoColor Maxicryl
StoColor Dryonic
S-Protect SC Clear Sealer
BRANZ Appraisal 515
StoArmat 15 or 20 Year Warranty with StoService Assurance
Finishes
Stolit: Coloured Finishing Renders
Stolit organic finishing renders are manufactured in Germany incorporating the latest technology; certified globally and successfully applied to rendered substrates in every climatic zone for over 50 years.
The Stolit range provides the perfect combination of properties: durable, strong, hard-wearing, impact-resistant, malleable, weather-resistant, colour-stable and highly resistant to microorganisms. In addition, its vapour permeability allows your building to breathe while still repelling water.
Coloured Self-Gauging Float Finish Renders: |
|||
![]() |
![]() |
![]() |
![]() |
Stolit K 1.0mm |
Stolit K 1.5mm |
Stolit K 2.0mm |
Stolit K 3.0mm |
Coloured Fine Float, Sponge, or Light Adobe Finish Renders: |
|||
![]() |
![]() |
![]() |
|
Stolit MP |
Stolit MP Natural |
Stolit Milano |
Facade Coatings
StoColor facade paints and StoClear sealers are a range of a serviceable coatings embodying intelligent technology for a range of surface functions to compliment the architectural structure and design. The StoColor System with 1000 shades, AC Architectural Colors, or matched to any colour using the Sto Spectrometer, provides a clear framework and systematic approach to colour based on integrated layers, combining texture and colour for aesthetic appeal.
Product |
StoColor Maxicryl |
StoColor Dryonic |
S-Protect SC Clear Sealer |
StoColor System
|
Download a Data Sheet:
Technical Datal Sheet (TDS) / Material Saftey Data Sheet (MSDS) / Sustainability Data Sheet (SDS)
Primers / Sealers:
Reinforcement Mesh:
Reinforcement Render / Base Render:
Finishing Renders:
Coatings:
Download a Technical Specification
Please register all completed Sto specifications to info@sto.co.nz to ensure project confirmation and Sto warranty.
Download a BRANZ Appraisal
Disclaimer: These drawings have been issued as a guideline. The sequence work covers various building components, each trade is responsible to ensure their elements are fully installed, including all waterproofing / sealant / flashings as is applicable.
Last updated November 2025
















